Tjänster för arkitektonisk design och CAD-utformning
Arkitektonisk design och CAD-utformning

Vi använder avancerad mjukvara för att skapa innovativa och dynamiska arkitektoniska mönster som förändrar hur utrymmen upplevs. Från idé till färdigställande, arbetar vårt team noggrant med varje detalj för att säkerställa precision och hög kvalitet i alla våra projekt. Oavsett om det handlar om bostäder, kommersiella lokaler eller offentliga byggnader, erbjuder våra CAD-designtjänster oändliga möjligheter att förverkliga dina arkitektoniska visioner.

Vi erbjuder följande CAD-ritningstjänster
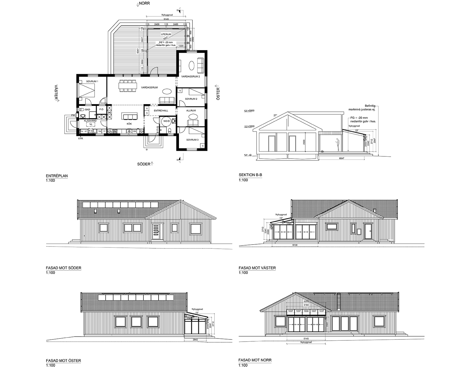
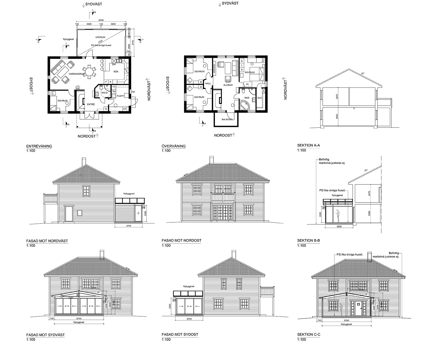
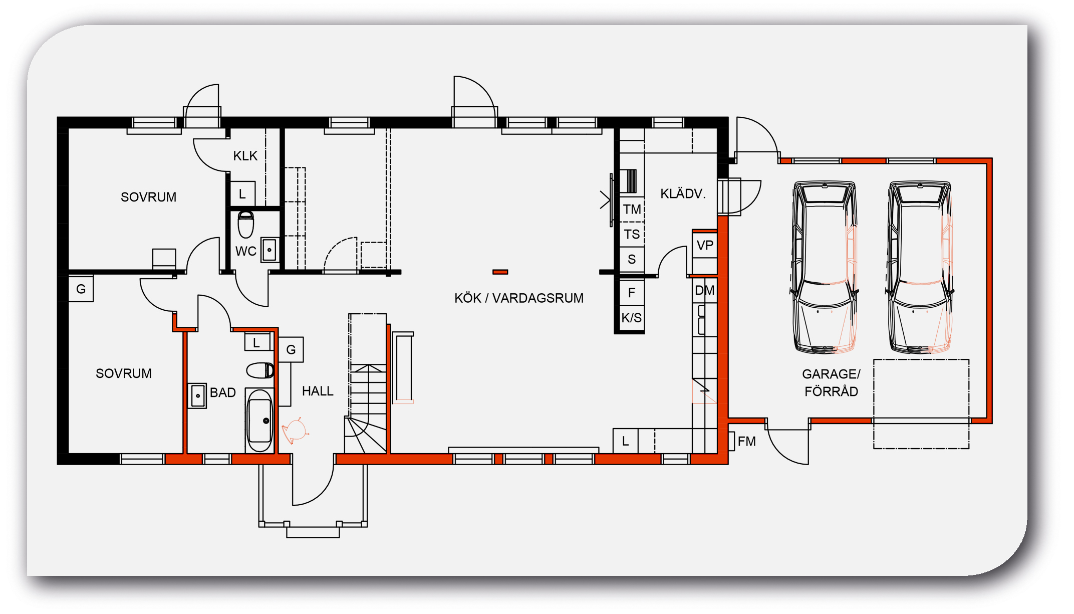
2D Planritningar

2D-plantjänster återspeglar planlösningen, som visar relationerna mellan rum, möbler och andra funktioner.

Exempel på 2D-ritningar från vår portfolio
Sektionsritningar

En sektionsritning visar ett vertikalt snitt genom en byggnad. Snittet görs vanligtvis längs den primära axeln, men kan placeras var som helst. Ritningen visar både de inre och yttre profilerna av byggnaden, samt detaljer om de inre rummen, väggarna som skiljer insidan från utsidan och andra viktiga funktioner

Exempel på sektionsritningar från vår portfolio
Höjdritningar

En höjdritning visar en byggnad sett från sidan och är en tvådimensionell, platt representation av en fasad. Ritningen visar höjderna på viktiga funktioner i byggnaden, i förhållande till en fast referenspunkt, som till exempel marknivån

Exempel på höjdritningar från vår portfolio
Platsritningar

Platsritningar visar både de befintliga och föreslagna förutsättningarna för ett område. De är kartor ritade i ingenjörsskala och används av arkitekter, landskapsarkitekter, stadsplanerare och ingenjörer.

Exempel på platsritningar från vår portfolio
Takritningar

En takplan är en skalenlig ritning eller diagram som visar en föreslagen takutveckling. Den inkluderar dimensioner för hela takkonstruktionen, såsom form, storlek, utformning och placering av material, ventilation, dränering, sluttningar, dalar med mera.

Exempel på takritningar från vår portfolio
Inredningsritning

Måtten på rummet eller utrymmet där möblerna ska placeras beskrivs på planen, inklusive längd, bredd och höjd. Planen visar placeringen och orienteringen av varje möbelobjekt i utrymmet.

Exempel på inredningsritningar från vår portfolio
Varför välja 3DFloorplans?

Prisvärt utan att kompromissa på kvalitet.

Alltid punktlig leverans – vi håller vad vi lovar!

Expertteam inom design.

Skräddarsydd design som matchar dina unika behov.